2702 Glenbrook Way, San Antonio, TX 78261
Active
Property Photos
Would you like to sell your home before you purchase this one?
Priced at Only: $484,900
For more Information Call:
Address: 2702 Glenbrook Way, San Antonio, TX 78261
Property Location and Similar Properties
- MLS#: 1956036 ( Single Residential )
- Street Address: 2702 Glenbrook Way
- Viewed: 49
- Price: $484,900
- Price sqft: $161
- Waterfront: No
- Year Built: 2004
- Bldg sqft: 3008
- Bedrooms: 4
- Total Baths: 4
- Full Baths: 3
- 1/2 Baths: 1
- Garage / Parking Spaces: 2
- Days On Market: 20
- Additional Information
- County: BEXAR
- City: San Antonio
- Zipcode: 78261
- Subdivision: Trinity Oaks
- District: Comal
- Elementary School: Indian Springs
- Middle School: Bulverde
- High School: Pieper
- Provided by: Keller Williams Legacy
- Contact: Kristen Schramme
- (210) 482-9094

- DMCA Notice
-
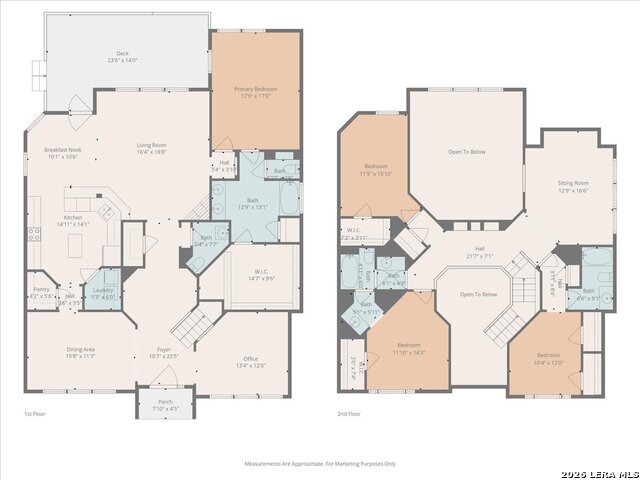
DescriptionTucked away at the end of a quiet cul de sac in the gated community of Trinity Oaks, this beautifully updated two story home offers privacy, space, and no city taxes for added affordability. Featuring 4 bedrooms and 3.5 bathrooms, the home includes a spacious primary suite downstairs with a large walk in closet and a recently renovated bathroom. Upstairs offers three additional bedrooms, a game room, and two full bathrooms including a private ensuite bedroom ideal for guests. The remodeled kitchen features stainless steel appliances, granite countertops, and freshly painted cabinetry. It opens to a light filled family room with soaring ceilings, an oversized ceiling fan, and a cozy fireplace. No carpet downstairs adds both style and easy maintenance. Step outside to a level backyard with a spacious deck, surrounded by mature trees and established landscaping perfect for entertaining or relaxing. Additional highlights include a detached oversized 2 car garage, extended driveway, and recently replaced roof and both AC units. Located in a highly sought after community with a pool, park, gated access, and neighborhood events, all zoned to Comal ISD including Pieper High School.
Payment Calculator
- Principal & Interest -
- Property Tax $
- Home Insurance $
- HOA Fees $
- Monthly -
Features
Building and Construction
- Apprx Age: 22
- Builder Name: Perry Homes
- Construction: Pre-Owned
- Exterior Features: Brick, Siding
- Floor: Carpeting, Ceramic Tile, Wood, Laminate
- Foundation: Slab
- Kitchen Length: 15
- Roof: Composition
- Source Sqft: Appsl Dist
Land Information
- Lot Description: Cul-de-Sac/Dead End
- Lot Improvements: Street Paved, Curbs, Street Gutters, Sidewalks, Streetlights
School Information
- Elementary School: Indian Springs
- High School: Pieper
- Middle School: Bulverde
- School District: Comal
Garage and Parking
- Garage Parking: Two Car Garage, Detached, Side Entry, Oversized
Eco-Communities
- Energy Efficiency: Ceiling Fans
- Water/Sewer: Water System, Sewer System
Utilities
- Air Conditioning: Two Central
- Fireplace: One, Living Room, Wood Burning, Gas
- Heating Fuel: Electric
- Heating: Central, 1 Unit
- Utility Supplier Elec: CPS
- Utility Supplier Gas: CPS
- Utility Supplier Sewer: SAWS
- Utility Supplier Water: SAWS
- Window Coverings: Some Remain
Amenities
- Neighborhood Amenities: Controlled Access, Pool, Clubhouse, Park/Playground, BBQ/Grill
Finance and Tax Information
- Days On Market: 18
- Home Owners Association Fee: 199.85
- Home Owners Association Frequency: Quarterly
- Home Owners Association Mandatory: Mandatory
- Home Owners Association Name: TRINITY OAKS HOMEOWNERS ASSOCIATION
- Total Tax: 3825
Rental Information
- Currently Being Leased: No
Other Features
- Contract: Exclusive Right To Sell
- Instdir: Turn right onto Trinity Park; turn right onto Trinity Pass; turn left onto Spiral Canyon; turn left onto Glenbrook Way; destination is on the right.
- Interior Features: Three Living Area, Separate Dining Room, Two Eating Areas, Island Kitchen, Breakfast Bar, Walk-In Pantry, Game Room, Loft, Utility Room Inside, High Ceilings, Open Floor Plan, Cable TV Available, High Speed Internet, Laundry Main Level, Laundry Room, Walk in Closets, Attic - Partially Finished
- Legal Desc Lot: 46
- Legal Description: Cb 4864A Blk 5 Lot 46 "Trinity Oaks Ut-1"
- Miscellaneous: No City Tax, Cluster Mail Box, School Bus
- Occupancy: Owner
- Ph To Show: 210-222-2227
- Possession: Closing/Funding
- Style: Two Story, Traditional
- Views: 49
Owner Information
- Owner Lrealreb: No
Similar Properties
Nearby Subdivisions
Amorosa
Belterra
Bulverde Village
Campanas
Canyon Crest
Century Oaks Estates
Cibolo Canyon
Cibolo Canyon/suenos
Cibolo Canyons
Cibolo Canyons.
Cibolo Canyons/estancia
Cibolo Canyons/monteverde
Clear Springs Park
Country Acres
Country Place
Fossil Ridge
Indian Springs
Indian Springs Estates
Langdon
Langdon-unit 1
Madera At Cibolo Canyon
Messina
R
Sendero Ranch
Smithson Ridge
Stratford
The Preserve At Indian Springs
The Villages At Bulverde Ph5
Trinity Oak Arbors
Trinity Oakes Ii
Trinity Oaks
Trinity Oaks Un 1
Tuscan Oaks
Verde Mountain Estat
Wortham Oaks
- RUTILA ENRIQUEZ
- Premier Realty Group
- YOUR TRUST, MY COMMITMENT
- Mobile: 210.365.5165
- Office: 210.641.1400
- Mobile: 210.365.5165
- rutila345@yahoo.com




































































